Need help choosing the right configuration?
Talk to Our TeamHow to read these plans
The floor plans below represent the seven apartment configurations available at Sobha World City Phase 1. When evaluating these layouts, focus on four things: carpet area efficiency (the usable space versus the SBA number), master bedroom width, kitchen ventilation, and balcony orientation. In towers reaching 54 floors, the higher units will offer panoramic views, and the difference between facings can be significant for both livability and long-term value.
Sobha Limited's backward-integrated construction model means the delivered apartment tends to closely match these plan specifications. The company controls its own interiors, glazing, and finishing, which reduces the variance between plan and execution. The Lux and Grande distinction within each bedroom count gives buyers a genuine choice: the Lux variants prioritise space efficiency, while the Grande variants offer more generous room proportions and additional utility areas.
All areas mentioned are Super Built-Up Area (SBA), which includes the apartment's walls, a proportionate share of common areas (corridors, lift lobbies, stairs), and balconies. The carpet area, the actual usable floor space inside, is typically 65-72% of SBA for high-rise projects. RERA mandates that carpet area be stated in the agreement for sale. View the pricing page for cost details per configuration.
Typical floor layout
The layout board below shows the typical floor arrangement within the towers, illustrating how the different configurations are positioned relative to each other and the common areas. Understanding the floor plate layout is important because it affects corridor width, lift-to-unit ratio, ventilation for individual units, and the views from different positions on the same floor.
Choosing the right layout
The seven configurations at Sobha World City are designed to serve different buyer profiles. The 1 BHK at 703-740 sq ft is aimed at first-time buyers entering the property market and investors looking for a Sobha-branded asset at the lowest possible ticket size. The compact layout prioritises functional efficiency: a well-sized bedroom, an open kitchen-living arrangement, and a balcony for natural light.
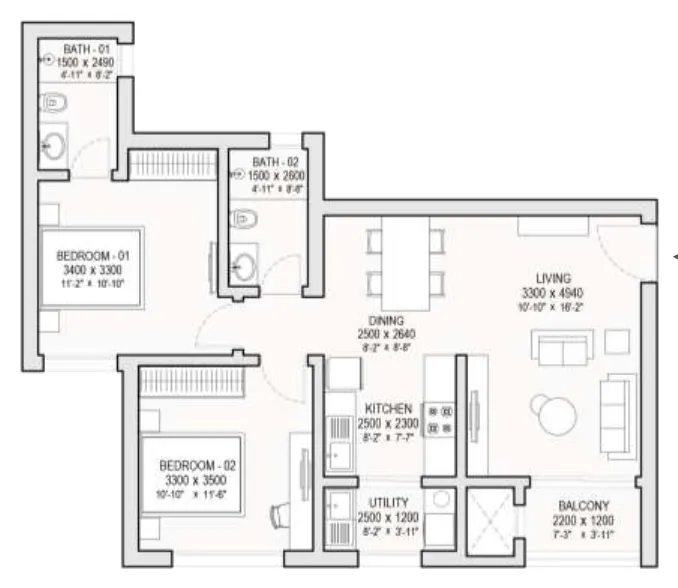
The 2 BHK Lux (1,015-1,070 sq ft) and 2 BHK Grande (1,200-1,213 sq ft) serve the young professional and small family segment. The difference between the two is approximately 200 sq ft of SBA, which typically translates to a larger living room and a more spacious master bedroom in the Grande variant. If your budget allows, the Grande offers meaningfully better room proportions for a modest price increment.
The 3 BHK configurations are where the volume is concentrated. The 3 BHK Lux (1,511-1,525 sq ft) with 870 units and the 3 BHK Grande (1,811-1,825 sq ft) with 1,608 units together account for nearly 60% of all Phase 1 apartments. These are family-sized configurations designed for end-use occupancy. The Grande, in particular, offers the space to accommodate a home office, a servant's room, or a guest bedroom without compromising the primary living areas.
The 4 BHK Lux (2,100-2,102 sq ft) and 4 BHK Grande (2,407-2,425 sq ft) are the premium offerings. With 264 and 168 units respectively, these are limited-inventory configurations that will typically occupy the best positions in each tower: corners, higher floors, and preferred facings. At ₹3.14-3.90 Cr, they represent the top of the Sobha World City range and will appeal to buyers who want maximum space and township living in a single package. Review the pricing details to compare cost across all seven types.